The old Vernon School, located south of Alberta between Going and Wygant, was the center of community life for two decades. Evidence of its presence has faded to invisible today.
Everything about the old Vernon School (1907-1932) has made us want to know more:
It’s gone now, slipped below the surface of living memory leaving few traces, so we’re going to have to reconstruct a sense of it through research, experience and a little imagination, which is what we love to do.
The original Vernon School, built in 1907-1908, was located on the block bounded by NE 23rd, NE 22nd, Going and Wygant. This view of the school’s south side is looking north-northwest about 1912. The main entrance was on the north side in the center. Photo courtesy of the Oregon Historical Society.
As a public school, it was both cornerstone and hearth for the community. During the day, Old Vernon was filled with the neighborhood’s young people: in class, outside on the grounds, in the portables, in the “manual training” rooms, walking home for lunch. In the evenings, every community group, service club, parent gathering, neighborhood concert, tea, dance, or lecture drew people from the surrounding blocks into the building. It was a place and institution that connected people to each other.
Vernon School Art Classroom. Courtesy of Oregon Historical Society.
There was the sadness at the end of its time. Many families didn’t want to leave the big old building and its traditions in favor of a promised new brick school a half-mile away.
And then there was the way it went: destroyed by an arsonist on a hot summer night with the entire community looking on, in fact, jamming the streets as they streamed in to watch, unwittingly hindering the fire department’s three-alarm response.
You probably know the vicinity of the old Vernon school south of Alberta Street, but you probably never knew it was there, occupying all of Block 54 of the Vernon Addition, bounded by NE 22nd and NE 23rd between Going and Wygant. Old Vernon was a giant, imposing wood frame building that commanded the center of the block, its main doors and prominent stairs facing north. The auditorium took up the entire top floor, tucked in under the hipped roof, dormers letting in light all the way around. Periodic construction added space over the years, eventually 17 classrooms in the main building, and several outbuildings for shop, cooking and a play shed. It was a big place.
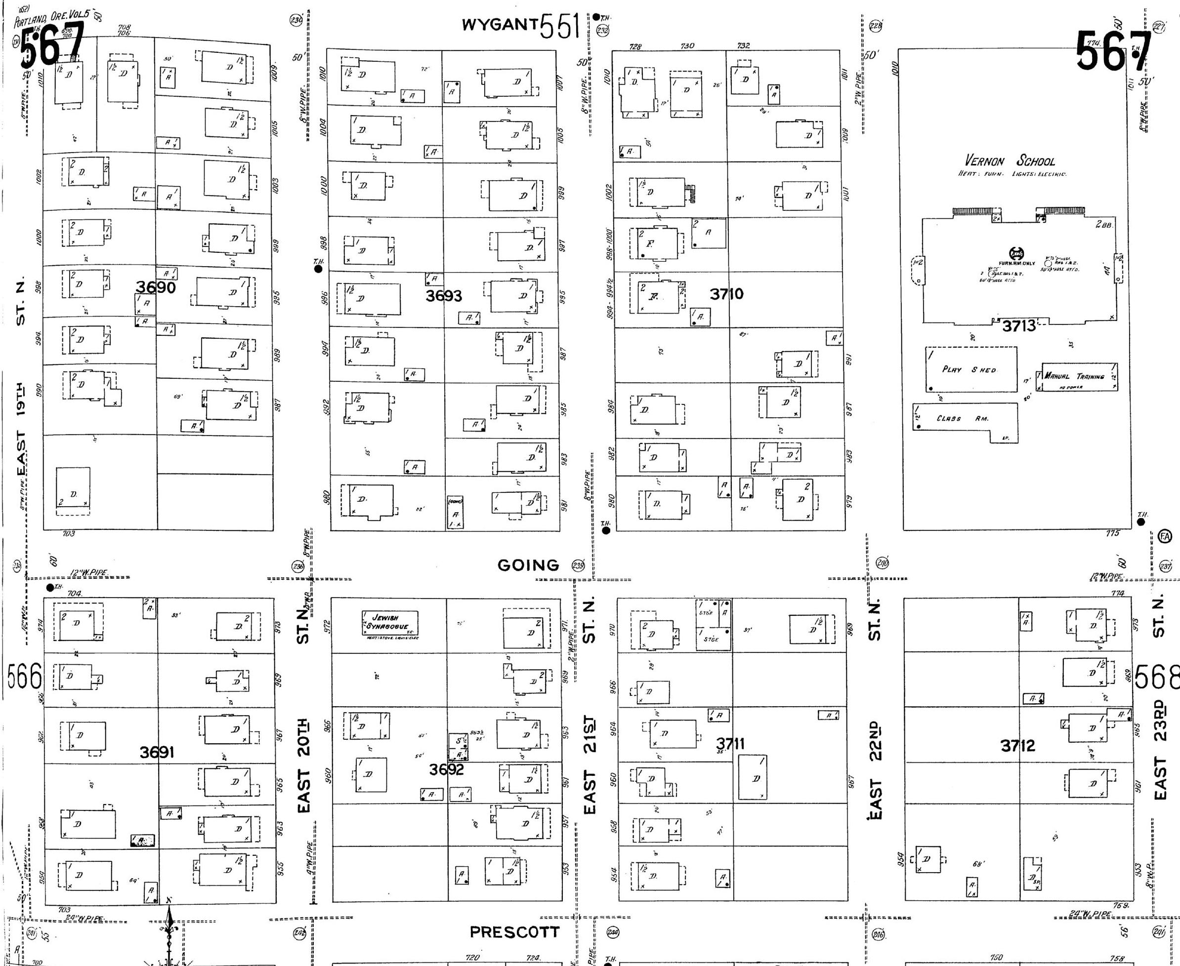
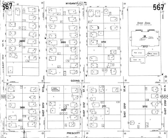
Sanborn panel 567 from 1924 shows old Vernon School and its outbuildings in upper right corner occupying the full block. Click on image for larger view.
Today, if you walk that block—as we have so many times looking for clues and trying to imagine the big old barn of a school—you’ll see how the brick and Cape Cod-style homes and duplexes on today’s Block 54 are different from the Craftsman and Old Portland style houses across the street built three decades earlier. Now you’ll know why.
After Old Vernon was abandoned in 1932, the school district tore down the wreckage and traded all 18 vacant lots of Block 54 (plus $2,000) to a developer for six lots adjacent to Thomas A. Edison High School, which during the 1930s-1940s occupied the corner of NE Beech and Mallory. This seems like a sweetheart deal to us, and we note the Portland School Board was split on the sale when they approved it on the night of April 11, 1940. Soon, new home construction was underway on the Old Vernon site, which was then fully built out with the houses we see today by 1945, erasing all traces of the old school.
The early story of old Vernon School is much like other eastside neighborhood schools. A building boom followed the 1905 Lewis and Clark Exposition, which put Portland on the national map as a desirable place to live. Open lands within four miles of downtown were bought up and platted for new development. Streetcars were the arteries of progress. And as people moved into the new neighborhoods they pushed for schools and parks.
Old Vernon opened as an eight-room school on September 15, 1908 with 324 students, many of whom were exports from Highland School (today’s Martin Luther King Jr. School at NE 6th and Wygant), which had overflowed with more than 700 students. By 1909, The Oregonian reported Vernon itself was already crowded and plans were being made to add 10 more classrooms, a covered play shed, three portables and a manual training (shop) building.
By 1914 Block 54 was a campus of four buildings, bulging at the seams with new students. Enrollment boomed, with more than 800 students at Old Vernon by the late teens. Meanwhile, plans were being made to build other nearby schools to take the pressure off and create closer-to-home options for local youngsters. Kennedy School on NE 33rd was opened in 1915 as part of this push.
Glimpses of life at Old Vernon can be found in recollected memories and newspaper clippings, including these postcard-like tastes:
“Many of the children who attended Vernon School helped in the barn prior to school each morning and weren’t always too careful about cleaning the manure from their shoes.”
“In the early years, there was one playground for the girls and another for the boys.”
“The old school had electric lights in the hallways, the principal’s office and the gymnasium where community programs were scheduled in the evenings. The classrooms had no lights. In the wintertime, when we lined up in the basement before going to class in the morning it was gray, almost too dark. If it got too dark in the classroom, we sang or listened to stories. This was good. We learned to listen.”
After arriving at school first thing, children stowed their coats in cloakrooms then lined up in the basement before marching in straight lines to their classrooms while a teacher or student played the hallway piano. One student remembered that if you stepped out of line, “you got the stick.” Old Vernon’s favorite march-to-class song was the Percy Grainger tune “Country Gardens” (which you have heard before even though you may not know its name).
“Students could roller skate or play games under a play shed in the back of the school, unless the piles of newspapers collected for periodic paper drives were too large. That was about the only time boys and girls could mingle with each other outside the classroom. Even cloakrooms were separated.”
“One teacher in a top floor classroom permitted her students to climb down the outside fire escape—quietly to avoid disturbing other classes—as a treat for being especially good.”
“Old timers recall a disciplinary ruckus which had strong repercussions in the community. This involved an older boy who defied the principal’s efforts to take him to the office. A wrestling match on the stairs between boy and principal [they reportedly fell down the stairs injuring the boy] spurred a pupil walkout, and the boy’s parents pressed charges. A hearing board exonerated the principal, but teachers and principal were reluctant to use severe punishments afterward.”
Year after year, students from Vernon School won the maypole dance competition during Rose Festival:
Maypole dancers from Vernon School won first prize at the Rose Festival in 1911. Photo courtesy of Oregon Historical Society.
The Oregonian, June 10, 1911
Apparently, Old Vernon’s academics were as strong as their maypole dance:
The Oregonian, April 3, 1927
By 1926, trends in school construction, safety and changing demographics were shaping the next generation of area schools.
Disastrous school building fires in other cities had galvanized the national building codes community—and Portland Mayor Harry Lane—into calling for “fireproof” buildings. Code changes were made: away from wood frame to concrete, steel and brick, and lowering the profile from multi-story to one or two stories. In 1926, some school board members proposed abandoning the existing building and locating a new Vernon School close to Alberta Park, an idea that didn’t go over well in the community. An article in the April 14, 1926 edition of The Oregonian chronicles opposition from the Vernon Daddies’ Club, a position they developed and had approved at a school-wide parent meeting:
The Oregonian, April 14, 1926
But the Daddies’ Club and the Vernon school community were on the losing end of the argument. By 1927, the school board was on the hunt for property and wanted the city to carve off the southern five acres of Alberta Park on Killingsworth between 19th and 22nd for the new school site. The community pushed back on this—whether to protect the park or because they just didn’t like the idea of losing Old Vernon we’ll never know—and was upheld by City Attorney Frank S. Grant, with a finding on October 15, 1927 that Alberta Park, which had been acquired through condemnation in March 1921, must be protected as park land and not used for a school
After being spurned by City Attorney Grant at Alberta Park, the board focused on a two-block area across the street, bounded by Killingsworth, Emerson, 20th and 22nd, where almost two dozen homes had already been built and 13 vacant lots were ready for more home construction.
A late-night meeting of the school board on December 2, 1929 heard several hours of public testimony on the acquisition, and according to The Oregonian, spiraled into “a sharp verbal combat between the directors,” but ultimately resulted in direction to move forward on the Killingsworth property. Gaining this site for a new school meant major work for school district staff, which they took on, eventually acquiring the property, demolishing the homes and getting the city to vacate NE 21st Avenue where it bisected the site. This took two years of wrangling.
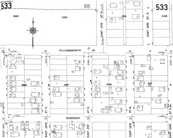
Sanborn panel 533 from 1924 shows the area of today’s Vernon School prior to acquisition by the Portland School District. Today’s Vernon occupies the two blocks between 20th and 22nd, bounded by Emerson and Killingsworth. The large empty block at the top left is Alberta Park. Click on image for a larger view.
Meanwhile back at Old Vernon, students continued to fill the aging, creaking classrooms, play outside in the sheds and open fields, and gather in the top floor auditorium. The city granted authority to temporarily close East 22nd Street during the school day so students could play in the street. Community clubs, concerts, lectures and Boy Scout troop meetings continued–the headquarters of Troop 33 was the Old Vernon basement.
On April 8, 1930, after acquiring the Killingsworth property, the school board auctioned off the remaining abandoned houses.
A $250,198 contract for construction of new Vernon was awarded on July 6, 1931 to F.S. Starbard and Company of Portland, and activity began on the new site targeting a September 1932 opening.
In March 1932, with construction going full steam, school leaders planned to mark the coming transition and perhaps heal the community with one last big gathering at the old school that would be both homecoming and forward-looking celebration. There’s no one around to ask how that went, nor any reporting that might reveal what that last evening was like, so that’s one for your imagination. Here’s the preview story:
The Oregonian, March 8, 1932
A cornerstone ceremony and time capsule placement was held at the new building on June 6, 1932 with all 500 students from Old Vernon looking on and checking out what was about to become their new school.
With school dismissed for the summer of 1932, the Portland School District had options. For the first time—with new buildings coming on line—they didn’t need to jam students into every available building space. Facility planners could contemplate the next move with properties. Bids were out for demolition of the buildings now empty on Block 54, but there was no hurry: New Vernon over on Killingsworth was ready.
Just after dark on Sunday, August 14, 1932, someone broke the glass in a basement door and let themselves into Old Vernon, ascended the stairs to the second floor, and set a fast-moving fire that lit up the night sky for miles. The three-alarm fire drew thouands of spectators and 19 engine companies. The morning newspaper was delayed to include the news. The Oregonian was swamped with calls resulting in an explanation for the delivery delay in a prominent boxed message on the paper’s front-page masthead: “Pardon Us – But our telephone exchange was swamped when the Vernon School burned.”
Front page breaking news coverage on Monday the 15th, and a follow-up story about the fire investigation on Tuesday, August 16th, tell the grim story:
The Oregonian, August 15, 1932
On Tuesday, the story had moved inside the paper to page 6 for more details on the investigation and cause:
The Oregonian, August 16, 1932
A year-long battle with the insurance company followed while the burned hulk of the building sat untouched. Originally insured for $70,000, the insurance settlement paid only $31,039.41 with underwriters arguing the building had been abandoned and that arson changed the equation. In March 1933, the board let a contract to Rose City Wrecking for $100 to demolish and haul off the remains, though the manual training building and the portable were salvaged and removed. The site was cleared by June 1933. Construction of new homes on the site began in October 1940.
Detail of an aerial photo from 1936 showing vacant Block 54 and the burn scar / footprint of old Vernon School. NE Prescott runs east-west along the bottom of the frame.
It’s hard to read the dozens of newspaper stories between 1908-1932 about the vibrancy of Old Vernon and what it meant to the community, and not want to slow things down a bit, to hear more from the decision makers, to ask a few more questions of the neighbors, to see what we might be able to work out on Block 54. Eventually, all of the multi-story big-barn type schools built in Portland between 1890-1915 either burned or were replaced. Neighborhoods changed, as they continue to do today.
Two time travelers still around from the Old Vernon era are nearby houses leased by the school to teach girls and boys about home economics. In our next post we’ll share photos and stories about how these houses gained national notoriety for Portland as an innovative education pioneer, and what the house can tell us today.
















This is fascinating Doug, we live nearby and had no idea about the old school being there. Across the street from it on the SE corner of 23rd/Wygant there used to be an odd looking wooden house. It looked like it might have been a storefront at one time. It was torn down a couple of years ago to make way for the new construction going up now. Do you have any clues about the history of the house on that lot?
Hi Amy. Glad you enjoyed the Old Vernon story. Who knew? The more I learned, the more fascinated I became, all the more so because it’s a set of stories about the neighborhood that have been completely lost to time.
I’ve been told that this old little building was originally a stable, which is very possible. Here’s what it looked like before it was demolished to make room for two attached units (don’t get me started).
I’ve done a quick look back and can’t verify the stable story, but definitely find it as a mom and pop grocery, owned by a Aline and Frank Halling in the late teens and early 1920s. Its pre-address-change address was 780 Wygant, which became 4748 NE 23rd after readdressing took place in the 1930s. In addition to being a corner store, in the 1960s it was a pet store, and in the early 1970s it was called “Tropical Fish from Donnell’s”
I am thoroughly enjoying your articles. My family home was built on the Southeast corner of the Old Vernon School block circa 1945. 4611 NE 23rd and Going St. We lived there until 1970.
We frequented the corner grocery (the little store) operated by Mr and Mrs Murray. Their living quarters were adjoined to the grocery store.
Many of us will be attending the 111th anniversary of Vernon School this Thursday. Thanks for the memories.
Excellent and in depth account of Old Vernon School – I never realized there was an Old Vernon School until I read this. Although it is sad to know that old buildings are gone it is good to know that the city was concerned about these wood frame school buildings burning down. So they made the new ones of brick to be fireproof only to find now, years later that they are just as dangerous due to earthquakes. Old Vernon sounds like it was an amazing building. I guess we can appreciate when our old buildings are preserved and sometimes re-purposed by private companies.
Hi Jeanie. Thanks for the note, I’m pleased you liked the Old Vernon story. It was interesting to see just how focused both the school board and the city council were on upgrading schools: the topic brought them together for their first joint session back in the 19-teens. Schools designed after the building code change were definitely engineered with fire prevention in mind, but also to grow and change over time depending on demographics and changing instructional needs. Many of have heard the Country Gardens song, but I couldn’t put a tune to the name until I heard it and thought readers might appreciate that too. Thanks for visiting.
PS – thanks for including the English Country Gardens youtube link!
Pingback: Old School | On The Way