The loss and complete transformation of what was once a vital Albina main street will always haunt this North Portland neighborhood, in so many different ways. Important chapters of Portland history have played out here, from the early days of being its own city before becoming part of Portland, through waves of immigration, to Civil Rights protests and the vibrancy of African-American owned business, life and culture.
Today, if you don’t know this history, you might drive north on Williams past Emanuel Hospital and not know you are traveling through a kind of sacred ground.
To help us imagine this lost place, here’s a pretty amazing photo from AH photo friend Norm Gholston, and a then-and-now shot we matched up during a recent outing. Norm shared this great old pic recently: it’s the image side of a “real photo” postard, popular in this era. Click to enlarge and take a good look.
Taken from just north of the intersection with Russell Street, the 1909 photo features a look at the Kennard and Adams department store on the left, which carried a little bit of everything. The first intersection in the distance is Knott Street. That’s the Immaculate Heart Church steeple at Williams and Stanton you can see in the distance, the only common denominator that really jumps out at you from the two photos (known back in the day as St. Mary’s Church, not St. Mark’s as the Sanborn implies).
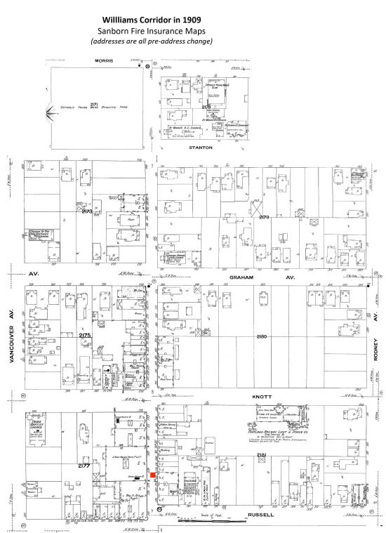
Here’s a composite of several Sanborn maps we put together to be able to visualize where Norm’s 1909 photo was taken. The red box indicates the approximate photo point. Click to enlarge.
Details from Sanborn plates 268, 273 and 274, from 1909.
If you ride, walk or drive this way—or if you didn’t know the history of this amazing stretch of street—take a moment to check out the following multiple sources of insight about what this neighborhood meant during its heyday, and how its loss has affected the people who knew it:
Historic Black Williams Project
An article about Albina in the Oregon Encyclopedia
A nice rewind that looks back across the years by The Oregonian




Doug, My fathers business was located on the corner of Union Avenue and Sacremento St. I wandered the streets in the area as a kid. One of my jobs with my dad was to collect bills from the residents of the area for work done by my dad’s business. That is a story in itself! I used to go to the movies at the old Alladin theater on Union Ave. As a white youth, in a black area I never experienced any problems beyond being checked out by members of the hood to be sure I belonged being there. I was in day school as a youngster during the war and had lunch and naps in the church on Williams Ave a couple of blocks north of Broadway. As a teen, I got my music records at the shop on the corner of Broadway and Williams. It was sad to see the area gentrified and lose it’s old character. Regards, Del
Thanks Del for sharing these memories.
Immaculate Heart Church was known as Saint Mary’s Church just like the Cathedral of the Immaculate Conception was often referred to as Saint Mary’s Cathedral.
Thanks Rob…was reading the Sanborn label which is incorrect. Updated with your good catch.
When a friend was lamenting the “whitening” of Albina I had to remind her it’s been a place with lots of turnover and disruption over the years. I’m sure the Russians, Germans and Slaves felt displaced too.
To me the urban renewal mania meant not only losing a lot of wonderful houses and buildings but a vibrant and rich musical Mecca that was never really re-created in any other part of town. The old Upstairs on Union was one of the last struggling holdouts of an amazing jazz scene that thrived for decades until most of the venues were knocked down. A real loss for our city.
Thank you.
When I was very young (4-6) — late ’50’s, my dad used to do business in that neighborhood (related to wholesale grocery at that time).
Sometimes he’d take me with him, bouncing around in our ’48 Chevy Panel Truck – Later a ’53 Chev Pick-up. I have very good (amazing) memories of the people there…so much energy and ‘community.’ We were very well received, my dad and me. I didn’t want to leave.
I felt right at home – couldn’t wait to go back again and again. (Note: I also have similar memories with him at various places in ‘Produce Row’ – and elsewhere around Old Portland — but Albina and Williams Ave. – were special. The way he was treated, I thought my dad was king — of the best neighborhood in town.
These photos side by side are very powerful and poignant. Thanks, Doug. 😦
Dear Doug,
I shared your latest blog post with a former coworker born and raised in North and NE Portland. Her family was deeply affected by all the urban renewal projects that perpetuated the devastation of the Albina community, losing a home on Larrabee to the Memorial Coliseum construction I believe, and then suffering the losses around Russell and Emanuel Hospital, I – 5 construction and the gentrification of so many North and Northeast neighborhoods. All this to say, she truly appreciated your story. Have you done a story on the Billy Webb Elks Lodge? She is very involved in that community – I’d love to share another piece of your history blog with her.
Thanks for all you do to inform us and help preserve our neighborhoods! I pass along her thanks to you below.
Ann Zawaski > > > Wow! THANK YOU !!! > > I LOVE this, what a GREAT story. My Mother forbade us to go on the corner, but my Dad took us HA !!! I remember some of these places and heard the stories by so many more people who lived, shopped, worked and owned businesses there. And the craziest part is that the Elks Lodge is the only thing left. And thanks to those who give a hoot it is going on the national historic register I believe this month so it will be preserved. > > I am going to pass it along, please give my thanks to Doug.
>